all-service-image-1

Ausência de Ponte Térmica

A estrutura em painéis reduz os pontos de perda térmica e elimina a necessidade de junções complexas entre materiais, simplificando o projeto e melhorando o desempenho térmico da edificação.

all-service-image-2

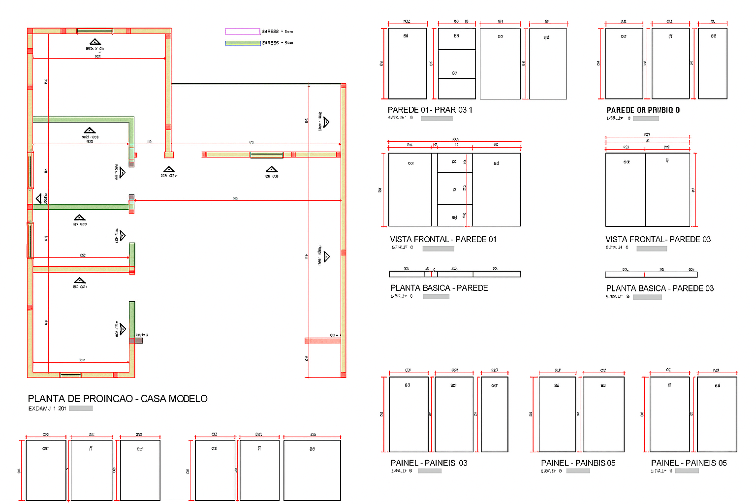
Flexibilidade de Projeto

O sistema SIP permite construções personalizadas em diversos formatos. Os painéis são entregues numerados e cortados sob medida, prontos para instalação conforme o projeto.

all-service-image-3

Resistência ao Fogo

Os painéis SIP oferecem alta resistência ao fogo graças à sua estrutura multicamadas. Compostos por núcleo isolante (EPS ou PUR) e camadas externas de OSB, formam uma barreira robusta e segura contra as chamas.

Eficiência Energética

Edificações com SIP consomem até 50% menos energia com aquecimento e resfriamento. O excelente isolamento térmico reduz significativamente as perdas de calor, tornando o sistema muito mais eficiente que métodos convencionais.

all-service-image-5

Resistência Elevada

Com estrutura em painel, o sistema SIP forma uma “casca monolítica” que garante resistência até 5x maior que a construção tradicional. Isso proporciona mais segurança, rigidez e durabilidade desde a montagem.

all-service-image-6

Sistema para Chumbamento

Um dos grandes benefícios dos painéis SIP é a facilidade de fixação na fundação. Por serem leves e com estrutura uniforme, podem ser instalados com ferramentas simples, sem equipamentos especiais. O processo é rápido, eficiente e reduz o tempo total da obra./p>

call-to-action-image

Transforme sua construção com Fast Panel!

Chegou a hora de transformar seus projetos em realidade. Não perca mais tempo!